(Wookjin Choi)
1
(Min Ji Song)
1
(Nam-Hyoung Lim)
2
(Soo Yeol Lee)
1*
Copyright © 2019 The Korean Institute of Metals and Materials
Key words(Korean)
continuous welded rail, microstructure, mechanical property, X-ray diffraction, crystal structure
1. INTRODUCTION
Railways are facilities and transportation systems used for driving passenger or freight
transport vehicles. Rails have long been used as convenient and important means of
transportation to convey goods and passengers from one place to another. One of the
main challenges of enhancing railway competitiveness is to ensure trains with higher
speed and comfortable ride. As vehicle speed increases, continuous welded rails, obtained
by welding multiple rails into one part, have been required to ensure stability at
higher speed. However, due to continuous wheel-rail contact during operation, the
rail is constantly subjected to repeated stresses, which can lead to catastrophic
failure. Moreover, with increased transportation volume, more loads are being applied
to rails, and brittle fractures can occur due to crack formation inside the rail.
Fatigue can also lead to fatal accidents by reducing rail lifetime. Therefore, in
order to prevent accidents, it is very important to understand rail damage that accumulates
during service.
Rails are subjected to normal loads by train wheels, shear loads by traction, and
breaking or flange contact [1,2]. Most severe problems occur in the railhead, where loads are concentrated directly
at the wheel-rail contact. Repetitive stresses that are even less than yield strength
can lead to railhead failure due to fatigue. Cannon et al. [3] reported that rolling contact fatigue (RCF) on rails caused major defects, such
as head checks, cracks, and squats on the railhead surface. Carroll and Beynon [4] reported that the white-layered microstructure promoted wear or cracking of the
rail by RCF, and they emphasized that a crack originating at the interface between
pearlite and the white layer can grow very deeply along the white layer and break
the rail. Cookson and Mutton [5] reported that the corrosion of rail defects by environmental factors like water
can promote rail failure and increase the possibility of crack initiation and growth.
Many investigations have been devoted to examining the effects of fatigue on pearlitic
and bainitic rails [6-10]; defect analyses have been performed using hardness tests, microstructural analysis,
and simulation [11-18]. Research on detection and prevention using non-destructive methods such as acoustic
emissions and microwave sensors have been widely performed [5,19-25].
Recently, various types of rails have been developed for many important purposes by
adding alloying elements during production and post heat treatment. Moreover, the
initial manufactured state (e.g., microstructure) of rails is known to gradually change
with the accumulation of damage due to repeated wheel-rail contact. These mechanical
stress conditions influence the material resistance and properties. Therefore, it
is critical to investigate changes in rail microstructure as a function of damage,
and the influence that damage has on the rail’s mechanical properties.
In this study, the microstructure and mechanical properties of continuous welded 50N
rail were examined. The crystal structure, phase distribution, tensile property, and
hardness were measured along the cross-section of the rail. More importantly, three
different rails (newly-manufactured rail, newly-manufactured head-hardened rail, and
worn (used) rail) were compared to investigate the effects of heat treatment and material
degradation during train operation.
2. EXPERIMENTAL DETAILS
2.1 Materials
Figure 1 shows the cross-sections of continuous welded 50N (a) new rail, (b) head-hardened
rail, and (c) worn rail. The “50N” is a symbol determined by the calculated weight
per meter based on KRS TR 0001-15(R). The standard code of new rail followed KS R
9106, and the standard code of head-hardened rail was KS R 9110. The new rail (Fig 1a) was conventionally-used newly-manufactured rail; the head-hardened rail (Fig 1b) was also newly-manufactured rail that was additionally heat-treated during the manufacturing
process. The heat treatment process for the head-hardened rail involved reheating
just the head part of the rail to 800 ~ 1000 ºC after the entire rail was heated by
electric induction heating device at 500~600 ºC. Then, air mist was sprayed to cool
down the railhead after slack quenching down to 500 ºC. The worn rail (Fig 1c), which was in use on the Gyeongbu line in Korea since 2002, experienced a total
gross tonnage of 550 MGT. The dimensions and nominal chemical compositions of the
rails are shown in Fig 2 and Table 1, respectively. Mechanical properties of the standard 50N rail are provided in Table 2.
2.2 Microstructural observation
The microstructure of the rail was examined using optical microscopy (OM) and scanning
electron microscopy (SEM) for samples cut from twenty locations selected from the
cross sections of the rails, as shown in Fig 3a. All of the specimens were prepared by electrical discharge machining (EDM). For
microstructural observation, the specimens were polished with up to 3 μm diamond suspension,
and etching was conducted using 4% nital solution as etchant for 15 ~ 20 sec. OM images
were taken using an Olympus BX51M and SEM images were taken using an FEI Magellan
400 at 10 kV. To estimate the size of the ferrite nodules, Electron backscatter diffraction
(EBSD) was performed with a step size of 0.8 μm. The X-ray diffraction (XRD) pattern
was measured from 30° to 110° on a Rigaku D/MAX-2500. Then, using the Rietveld refinement
with the Fullprof program, the XRD diffraction data were analyzed to obtain information
about the quantitative phase fraction.
2.3 Mechanical testing
Tensile tests and hardness measurements of the new rail, head-hardened rail, and worn
rail were performed to investigate the effects of crystal structure and microstructure
on mechanical behavior. Dog-bone cylindrical tensile specimens were prepared using
EDM. The specimens were cut from ten locations chosen in the cross section, as indicated
in Fig 3b. Tensile testing with a strain rate of 10 -4/s was carried out at room temperature in air atmosphere until the specimens were
fractured. The tensile loading direction was the longitudinal direction of the rail.
Vickers hardness tests were carried out in the cross-sectional plane, which was perpendicular
to the longitudinal direction. Intervals between indentation were 1.3 mm, and indentation
force was 0.3 kgf.
3. RESULTS
3.1 Crystal structure
Figure 4 shows X-ray diffraction (XRD) patterns for the (a) new rail, (b) head-hardened rail,
and (c) worn rail. With XRD, it is very difficult to distinguish ferrite from partial
bainite and partial martensite. Hence, ferrite, bainite (body-centered cubic, BCC)
and martensite (body-centered tetragonal, BCT) were all considered to be BCC for the
current analysis. All three rails consisted of a mixture of BCC and face-centered
cubic (FCC) crystal structures as a majority phase with a very small amount of cementite
(Fe3C) as a minor phase. Rietveld analysis revealed that the weighted fractions of the
BCC crystal structure were approximately 74%, 64%, and 85% for the new rail, head-hardened
rail, and worn rail, respectively (Fig 5).
3.2 Microstructural analysis
Figure 6 provides OM images measured at the various positions indicated in Fig 3a. The three rails had different microstructures in the railhead, while the other positions
had similar pearlite structures. In location 9 (the middle surface of the foot), an
increased portion of pro-eutectoid ferrite was found for all three rails. Compared
to the microstructure at location 1 (the head surface of the three rails), the new
rail showed pearlite and a small amount of pro-eutectoid phase, while the head-hardened
rail exhibited a bainite structure showing elongated sharp cementite (Fe3C) within the ferrite phase, which was distinct from the general pearlite structure
shown in the web and foot locations. This was due to the effect of the additional
heat treatment followed by moderate cooling.
The railhead microstructure of the worn rail was different: a deformed microstructure
with texture was observed, as shown in location 1 in Fig 6c. The microstructure of the worn rail at location 1 resulted from plastic deformation
by repeated wheel-rail contact stress; no deformed microstructure was observed at
other locations beneath the railhead surface.
3.3 Mechanical properties
Stress-strain responses in tension were compared for the three rails, and the results
are shown in Fig 7. For all three rails, the tensile strength at location 1 had values 100~200 MPa higher
than those of other locations. While higher tensile strength was found at only location
1 (top surface of the head) for the new rail and the worn rail, the head-hardened
rail showed higher tensile strength at several locations (1, 2, 3, and 4, as shown
in Fig 3b) near the top of the railhead. The tensile strengths at locations 1~4 in the head-hardened
rail were approximately 1000 MPa. The elongation of the head-hardened rail was about
8 to 12%, which was shorter than those of the other two rails (about 18%).
Figure 8 provides mapping of hardness measurements for the three rails. In the new rail, a
hardness of about 270 HV was measured in the railhead and feet, and a relatively low
hardness value was measured in the middle location. The head-hardened rail showed
the highest hardness, of over 300 HV, in the area of the railhead. The hardness values
in the other positions of the head-hardened rail were similar to those of the new
rail. Compared to the new rail, the worn rail exhibited similar hardness except for
the railhead surface, which had relatively higher values.
4. DISCUSSION
Figure 9 presents a comparison of the stress-strain responses for the new rail, head-hardened
rail, and worn rail for location 1 (top surface of the railhead) and location 7. It
should be noted that the yield strength and tensile strength at location 1 were much
higher than those values at location 7. More specifically, the yield strength and
tensile strength of the three rails at location 1 were, respectively, approximately
1.6-1.8 times and 1.1-1.3 times higher than those at location 7. The mechanical test
results were consistent with the hardness measurements, indicating that the highest
hardness values were obtained at location 1.
It is interesting to compare the mechanical properties among the three rails for the
same location. While the yield strength and tensile strength of the three rails were
very close in location 7 regardless of the types of rails, some differences were found
at location 1 (Fig 9a). Though the yield strengths of the new rail and worn rail at location 1 were very
similar, the worn rail showed higher strain hardening and tensile strength. The head-hardened
rail revealed yield strength and tensile strength slightly higher than those of the
other two rails. More detail on the mechanical testing results is provided in Table 3.
The different mechanical properties among the three rails are closely related to their
distinct microstructures. The microstructures at location 7 for the three rails exhibited
a very similar pearlitic structure, which resulted in similar mechanical strength,
as shown in Fig 9b. On the other hand, the head-hardened rail with the highest yield and tensile strength
at location 1 (railhead) revealed a quite different microstructure, as shown in Fig 10b. A cementite, a sharply elongated form of Fe3C, was dispersed within the ferrite matrix, indicating a bainite structure. The ferrite
nodules in the head-hardened rail were finer than those in the new rail. It is known
that cementite within the ferrite matrix in the bainite structure acts as an obstacle
to dislocation movement, which increases the strength, hardness, and wear rate [26-28].
Lamellar spacing in pearlite steel is determined by the austenization temperature
and cooling rate during the heat treatment process [29-31]; pearlitic steel is strengthened by decreased lamellar spacing and increased dislocation
density, and by the solution of carbon atoms in the ferrite matrix, as reported by
Scheriau and Pippan [32]. That being so, it is thought that microstructural refinement of the bainitic structure
resulted in greatly increased mechanical strength in the head region of the head-hardened
rail.
Figure 9a shows that the tensile strength of the worn rail was between those of the new rail
and the head-hardened rail; the strain hardening rate of the worn rail was higher
than that of the new rail. Note that the worn rail is a used rail that underwent repeated
wheel-rail contact stresses during train service since 2002. Figure 10c shows that the microstructure of the railhead in the worn rail was totally different
from that in the new rail. The worn rail had a pearlitic microstructure at location
1, as observed in the new rail. However, the lamellar structure consisting of ferrite
and cementite became significantly distorted, as confirmed by EBSD mapping (Fig 10c). The pronounced lattice distortion indicates an increase in dislocation density,
which should be responsible for an increase in the strain hardening rate and tensile
strength of the worn rail. Moreover, it is thought that the smaller lamellar spacing
shown in the distorted pearlite phase also contributed to the strengthening of the
worn rail.
5. CONCLUSIONS
We examined the effects of heat treatment and wear on the microstructure and mechanical
properties of continuous welded 50N rail using samples of new rail, head-hardened
rail, and worn rail. The main findings are summarized below.
All three rails consisted of a mixture of body-centered cubic (BCC) and face-centered
cubic (FCC) crystal structures with a very small amount of carbide. XRD analysis revealed
that the weighted fractions of the BCC crystal structure were approximately 74%, 64%,
and 85% for the new rail, head-hardened rail, and worn rail, respectively.
The railhead of the worn rail exhibited some texture due to repeated wheel-rail contact,
and had undergone significant distortion of its lamellar pearlite structure. A bainite
phase appeared only in the railhead of the head-hardened rail; pearlite with proeutectoid
phase was observed in the web and foot locations of all three rails.
While the web and foot areas of the three rails showed no significant differences
in mechanical properties, the railheads of the three rails exhibited different levels
of yield strength, tensile strength, and hardness. The head-hardened rail had the
highest values among the three rails.
The differences in the mechanical properties of the rails were closely related to
their distinct microstructures. The higher mechanical strength of the railhead of
the worn rail might be thought to result from a combination of work hardening and
smaller lamellar spacing of the pearlite phase, induced by repeated wear processes
during train operation. The very high tensile strength and hardness of the head-hardened
rail were attributed to bainite phase transformed by additional heat treatment.
Acknowledgements
This research was supported by a grant (No. 19RTRPB113580-04) from the Railroad Technology
Research Program (RTRP), funded by Ministry of Land, Infrastructure and Transport
of the Korean government.
REFERENCES
ARTC, Rail Defects Handbook, Issue A,4-68, Australian Rail Track Corporation LTD (2006)

Schilke M., Degradation of Railway Rails from a Materials Point of View,9-15, Chalmers
University of Technology (2013)

Cannon D. F., Edel K. O., Grassie S. L., Sawley K., Fatigue Fract. Eng. Mater. Struct,26,
865 (2003)

Carroll R. I., Beynon J. H., Wear,262, 1253 (2007)

Cookson J. M., Mutton P. J., Wear,271, 113 (2011)

Ekberg A., Kabo E., Wear,258, 1288 (2005)

Beynon J. H., Garnham J. E., Sawley K. J., Wear,192, 94 (1996)

Cannon D. F., Pradier H., Wear,191, 1 (1996)

Sawley K., Kristan J., Fatigue Fract. Eng. Mater. Struct,26, 1019 (2003)

Gui X., Wang K., Gao G., Misrab R.D.K., Tana Z., Bai B., Mater. Sci. Eng. A,657, 82
(2016)

Aglan H. A., Fateh M., Int. J. Damage Mech,15, 393 (2006)

Steenberg M., Dollevoet R., Int. J. Fatigue,47, 361 (2013)

Larijani N., Brouzoulis J., Schike M., Ekh M., Wear,314, 57 (2014)

Kaewunruen S., Ishida M., Marich S., Acoust. Aust,43, 97 (2015)

Maya-Johnson S., Ramirez A. J., Toro A., Eng. Fract. Mech,138, 63 (2015)

Masoumia M., Sinatorac A., Goldenstein H., Eng. Fail. Anal,96, 320 (2019)

Ishida M., Elect. J. Struct. Eng. International,13, 67 (2013)

Magel E., Mutton P, Ekberg A., Kapoor A, Wear,366, 249 (2016)

Rose J. L., Avioli M. J., Mudge P., Sanderson R., NDT E Int,37, 153 (2004)

Bruzelius K., Mba D., NDT E. Int,37, 507 (2004)

Vijayakumar K., Wylie S. R., Cullen J. D., Wright C. C., AI-Shamma’a A.I., J. Phys.
Conf. Ser,178, 012033 (2009)

Kostryzhev A. G., Davis C. L., Roberts C., Ironmak. Steelmak,40, 98 (2013)

Kaewunruen S., Ishida M., Exp. Tech,40, 1179 (2016)

Yao W., Yang Y., Zhao K., Wei X., Zhang L., Zhai M., Rao F., Int. J. Mod. Phys. B,33,
1940031 (2019)

Zhuravlev A., Razevig V., Ivashov S., Skrebkov A., Alekseev V., Senosors,19, 1376
(2019)

Ridley N., Metall. Trans. A,15, 1019 (1984)

Taleff E. M., Lewandowski J. J., Pourladian B., JOM,54, 25 (2002)

Edmons D. V., Cochrane R. C., Metall. Trans. A,21, 1527 (1990)

Marder A. R., Bramfitt B. L., Metall. Trans. A,7, 365 (1976)

Yahyaoui H., Sidhom H., Braham C., Baczmanski A., Mater. Des,55, 888 (2014)

Yu W., Xie B. S., Wang B., Cai Q. W., Xu S. X., J. Iron. Steel Res. Int,23, 910 (2016)

Scheriau S., Pippan R., Berg Huettenmaenn Monatsh,153, 242 (2008)

Figures and Tables
Fig. 1.
(a) new rail, (b) head-hardened rail, and (c) worn (used) rail for continuous welded
50N rail.
Fig. 2.
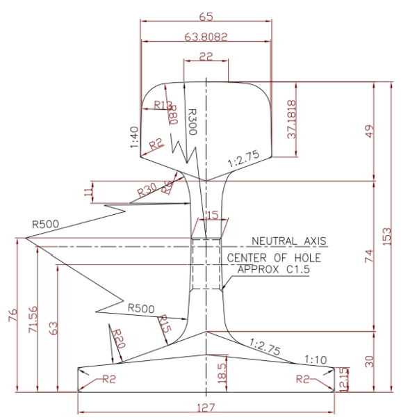
Dimension of 50N rail (unit: mm).
Fig. 3.
Locations measured for (a) microstructural observation and (b) tensile test.
Fig. 4.
X-ray diffraction (XRD) patterns of rails: (a) new rail, (b) head-hardened rail, and
(c) worn rail.
Fig. 5.
Phase analysis obtained from Rietveld refinement: (a) new rail, (b) head-hardened
rail, and (c) worn rail.
Fig. 6.
OM images at various locations of rails: (a) new rail, (b) head-hardened rail, and
(c) worn rail.
Fig. 7.
Stress-strain responses for (a) new rail, (b) head-hardened rail, and (c) worn rail.
Fig. 8.
Vickers hardness test results: (a) new rail, (b) head-hardened rail, and (c) worn
rail.
Fig. 9.
Comparison of tensile stress-strain behavior among the three rails at (a) location
1 and (b) location 7.
Fig. 10.
OM, SEM, and EBSD images at locations 1 and 7: (a) new rail, (b) head-hardened rail,
and (c) worn rail.
Table 1.
Nominal chemical composition of rails.
|
Rail Type
|
C (wt%)
|
Si (wt%)
|
Mn (wt%)
|
P (wt%)
|
S (wt%)
|
Cr (wt%)
|
Fe (wt%)
|
|
New and worn
|
0.63~0.75
|
0.15~0.30
|
0.70~1.10
|
~0.030
|
~0.025
|
-
|
Bal.
|
|
Head-hardened
|
0.72~0.82
|
0.10~0.55
|
0.70~1.10
|
~0.030
|
~0.020
|
~0.20
|
Bal.
|
Table 2.
Mechanical properties on the standard 50N rail.
|
Rail Type
|
Tensile Stress (MPa)
|
Elongation (%)
|
Hardness (HBW)
|
Shore Hardness (HSC)
|
|
New and worn
|
800 <
|
10 <
|
260~300
|
-
|
|
Head-hardened
|
1,080 <
|
8 <
|
-
|
47~53
|
Table 3.
Summary of yield strength (YS) and tensile strength (TS) of new rail, head-hardened
rail, and worn rail at locations 1 and 7.
|
Unit (MPa)
|
New rail
|
Head-hardened rail
|
Worn rail
|
|
Location 1, YS
|
836
|
878
|
748
|
|
Location 7, YS
|
462
|
483
|
459
|
|
Location 1, TS
|
900
|
1055
|
1000
|
|
Location 7, TS
|
800
|
812
|
782
|